首页
招生动态
招生章程
招生计划
历年分数
奖助学金
咨询问答
院系专业
咨询问答
人才培养
校区首页
中国石油大学(北京)克拉玛依校区2018年高水平运动队招生简章
发布时间:2018-01-28  浏览量:13629
返回

中国石油大学(北京)克拉玛依校区

2018年高水平运动队招生简章


中国石油大学(北京)是一所石油特色鲜明、以工为主、多学科协调发展的国家教育部直属全国重点大学。是首批“211工程”重点建设、“优势学科创新平台”建设、国家“双一流”学科建设并设有研究生院的高等院校之一。2015年,教育部批准学校建设克拉玛依校区。60多年来,学校为国家石油石化工业的发展奠定了人才基础,被誉为“石油人才的摇篮”。

克拉玛依校区位于新疆维吾尔自治区克拉玛依市,规划占地480公顷,建筑面积48万平方米。校区共享校本部一流的师资,拥有一流的教学科研设施,为学生提供了适宜的学习、生活环境。

校区建有2个标准塑胶运动场、1个大型综合体育馆,其中包括篮球馆、排球馆、羽毛球馆(羽毛球训练比赛场地10个)。运动设施齐全,校区拥有一支经验丰富,素质过硬的教练队伍。为了促进克拉玛依校区体育运动事业的发展,提升大学生素质教育工作水平,根据教育部《关于做好2018年普通高等学校部分特殊类型招生工作的通知》(教学司[2017]15号)文件相关规定,2018年克拉玛依校区招收高水平运动队考生。

中国石油大学(北京)克拉玛依校区招生代码19414。地址:新疆维吾尔自治区克拉玛依市克拉玛依区安定路355号。克拉玛依校区招收的高水平运动员在克拉玛依校区学习。克拉玛依校区招收项目为羽毛球。考生填报时请正确选择。

一、 克拉玛依校区招收项目与招生计划

项目

小项

招生计划数

羽毛球

男子

0-6

女子

0-4

二、 报名条件

生源所在地在北京市、重庆市内蒙古自治区、新疆维吾尔自治区、宁夏回族自治区、广西壮族自治区、黑龙江省、吉林省、河北省、山西省、青海省、山东省、河南省、辽宁省、安徽省、江西省、湖南省、湖北省、甘肃省、陕西省、四川省、贵州省,且具备下列条件之一的考生:

1.高级中等教育学校毕业,获得国家二级运动员(含)以上证书且高中阶段在省级(含)以上比赛中获得集体项目前六名的主力队员或个人项目前三名者;

2.具有高级中等教育毕业同等学历,获得国家一级运动员(含)以上证书者或近三年内在全国或国际集体项目比赛中获得前八名的主力队员。

凡以同等学历报考的考生必须提供与高级中等教育相当的学习证明和成绩单,由省级教育行政部门协助招生学校对其资格进行认定。未经资格认定的同等学历考生不得报考。

考生所持本人运动员技术等级证书中的运动项目应与报考的运动项目一致(原则上运动小项也应对应一致)。

三、 报名办法

(一)网上报名(2018年1月29日—2018年2月23日)

考生须通过教育部阳光高考特殊类型招生报名平台进行网上报名,网址http://gaokao.chsi.com.cn/zzbm,按系统使用说明进行注册后,根据要求准确完整地填写申请表,并经签字确认后扫描或拍照上传完成网上报名。

1.考生限报5所学校。报名系统中,考生填报项目类别为羽毛球。

2.考生须如实填写“中国石油大学(北京)克拉玛依校区2018高水平运动员招生申请表”(简称“申请表”),其中成绩信息、综合信息由毕业高中审核,校长签字并加盖学校公章。“申请表”扫描件、运动员等级证书等各类“证明材料”的扫描件或照片通过系统提交。

(二)邮寄初审材料(截至2018年2月23日(以EMS寄出邮戳时间为准))

考生须使用A4纸打(复)印相关材料,并务必通过EMS(邮政特快专递)寄送至北京市昌平区中国石油大学(北京)体育与人文艺术学院,赵京辉老师收,信封上注明“高水平招生报名”。

报名材料包括:

1.申请表(含个人简历),通过报名系统生成并打印,本人签字、校长签字并加盖学校公章;

2.考生身份证复印件(正反面);

3.高中阶段二级(含)以上国家等级运动员证书复印件;

4.考生通过国家体育总局“运动员技术等级综合查询系统”http://jsdj.sport.gov.cn/并使用A4纸打印出本人运动员等级证书资料;

5.高中阶段运动会秩序册、成绩册、成绩证书复印件。

考生和所在中学须对以上材料的真实性负责。

网上报名材料和完整的纸质报名材料缺一不可。无论录取与否,申请材料概不退还,请考生保留重要原件。

四、 选拔流程

(一)查询初审结果(2018年3月5日)

校区本科招生办公室汇总报名名单,报校区招生工作小组组长审批。

文理学院体育系负责组织专家对考生的报名材料进行审核,结合校区高水平运动队建设需要,根据考生政治思想表现、学习成绩和专项水平等,择优拟定初审合格名单,校区本科招生办公室审查,校区招生工作小组组长审批,发布初审合格名单。

(二)报到与测试

报到时间2018年3月9日上午(8:00-12:00),下午体检

报到地点中国石油大学(北京)北京校区体育馆。

考生须提供身份证、高中阶段二级(含)以上国家等级运动员证书、运动会秩序册、成绩册、成绩证书等原件。

一寸近期彩色免冠证件照4张。

凡参加校区高水平运动队招生测试的所有考生须购买测试期间的个人“人身意外伤害保险”。

体检合格,并签订“同意接受兴奋剂检查和不使用兴奋剂的承诺书”,方允许参加测试。

测试时间2018年3月10日

测试地点:中国石油大学(北京)北京校区体育馆。

五、 测试内容

测试指标与所占分值                                                                    

类别

身体素质

基本技术

实战能力

指标

场地移动

前场技术

后场技术

比赛

分值

10

10

10

70

(1)场地移动

测试方法:

考生站在场地右侧单打底线以外(右手持拍)先进行前后移动,听到口令(同时开表)后,直线上网,单手触网后,直线后退踩底线为完成一个来回,反复进行5次。第5次上网触网后,后退踩底线同时要求双脚出单打边线,并连续做5次左右移动。

左右移动,用持拍手触球,面向球网转身,然后向右侧移动用持拍手触球,为完成一次左右移动。如此反复进行5次。当完成5个回合的左右后在右侧(右手持拍)触线时停表,记录所用时间(见图一)

1

(2)前场技术(正反手放、勾、推)

测试方法:

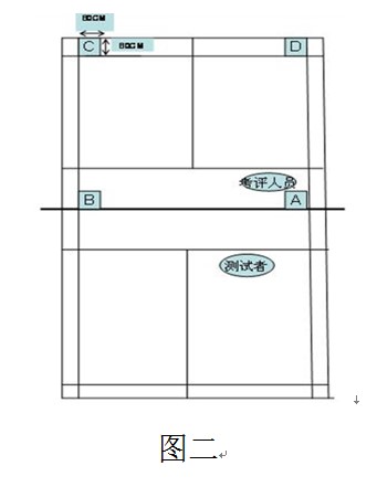
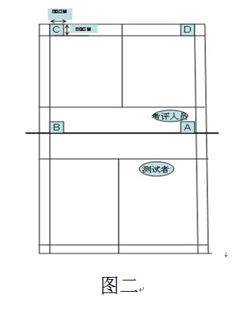
在右侧(左侧)区击球(共20个球)

由考评人员向测试者右(左)侧网前抛球,测试者站在前发球线外上网并按照固定的顺序(共击8个球):放、勾、推、推技术把球分别击到指定的区域内(A、B、C、D),并轮转2次。最后剩下的两球由考生将球击到提前选择的2个区域内(从A、B、C、D中选其二,但是两点不能相同)(见图二)

2

(3)后场技术(直线和斜线高远球、吊球)

测试方法:

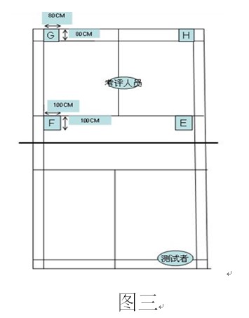
在右侧(左侧)区击球(共20个球)

由考评人员发高球,考生站在右场区双打后发球线外进行斜线分别应用高球和吊球技术将球击到指定的区域内(E、F、G、H),并轮转2次。最后两球的落点由考生在E、F中选择一个和G、H中在一个(见图三)

3

(4)比赛

六、 录取

(一)入选资格

克拉玛依校区在高水平运动队选拔过程,遵循“公平、公正、公开、综合评价、择优录取”原则。对于达到教育部及考生所在省高水平运动队招生标准,符合校区高水平运动队招生条件和运动队发展需要的考生,择优给予入选资格。入选资格名单上报教育部和考生所在省(自治区、直辖市)招办审批、教育部高考阳光平台上公示,并在克拉玛依校区本科招生网上公示。

(二)录取

按照教育部文件要求,考生高考文化成绩一般不低于所属生源地省(自治区、直辖市)本科第二批次录取控制分数线;对于少数体育测试成绩特别突出的考生,可适度降低文化成绩录取要求,但不低于所属生源地省(自治区、直辖市)本科第二批次录取控制分数线的65%,此类考生人数不超过校区当年高水平运动队招生计划的30%。获得一级运动员、运动健将、国际健将称号之一的考生,须参加国家体育总局统一组织的文化课考试并达合格线,此类考生拟录取人数不超过校区当年运动队招生计划的20%。对于合并批次的省份,按相关省级教育行政部门或招生考试机构确定的“高水平运动队”相应合格录取控制线执行。

1.一级(及以上)运动员

对有一级(及以上)运动员等级证书且测试结论达到优秀或一级(及以上)的运动员,将结合招收项目和测试成绩等情况择优确定考生是否通过校区考核。通过校区考核的考生需参加国家体育总局统一组织的普通高等学校高水平运动队文化统测考试,成绩合格,予以录取。

按照教育部《关于做好2018年高校高水平运动队有关考试招生工作的补充通知》的要求,该类考生须参加文化课统考。考生应在“中国运动文化教育网” www.ydyeducation.com或“体教联盟”手机APP上进行考试报名,报名时间为3月1日至3月15日。文化课统一考试科目为语文、数学、政治、英语4科,每科满分均为150分。考试时间为2018年4月21日至22日。其中,4月21日,9:00-10:30为语文,14:00-15:30为数学;4月22日,9:00-10:30为政治,14:00-15:30为英语。考试大纲在中国运动文化教育网公布。

2.二级运动员

经教育部和考生所在省级招生主管部门公示无异议,测试等级为合格(相当于二级运动员)且取得报考资格的考生必须按要求参加普通高等学校招生全国统一考试。

(三)专业

考生专业志愿填报为克拉玛依校区经济学、会计学、俄语三个专业。

未尽事宜按教育部当年有关政策执行。

七、 监督机制

1.校区招生工作领导小组负责高水平运动队选拔录取领导工作,本科招生办公室和文理学院体育系负责具体实施,所有测试项目将进行全程录像,校区纪检监察部门全程参与监督。校区成立特殊类型招生考试仲裁小组,依据相关办法和程序,处理特殊类型招生中所涉及专项测试的争议申诉。

2.考生本人应本着诚信原则,严格按照程序进行申请并参加测试。报名材料必须属实,如有弄虚作假者,一经查实,将取消该生的报名与测试资格。

3.校区将在入学后对所录取的学生进行身体健康复检和运动水平复测,凡不符合录取要求或者弄虚作假者,取消入学资格。

八、 管理条例

克拉玛依校区录取的高水平运动队考生在校学习期间,必须遵守学校的有关规定,服从安排,参加学校组织的有关体育训练和比赛活动,承担个人应尽的义务。

九、 联系方式

地址:新疆维吾尔自治区克拉玛依市克拉玛依区中国石油大学(北京)克拉玛依校区文理学院体育系

邮编:834000

联系人:赵京辉老师

联系电话:13611310078